42+ Mimari Proje Aks Neye Göre Çizilir Görüntüler

Dersin tanımı dersin amacı dersin ön koşulları.

42+ Mimari Proje Aks Neye Göre Çizilir Görüntüler. Mimari proje, mimari plan nedir, nasıl çizilir? Aks, kolon, perde ve poligon perde tanımlamak videosuyla başlayan. Eskiz hazırlanırken dikkat edilmesi gereken kurallar aşagıdaki gibi sıralanmıştır keza mimari proje çalışmalara paralel olarak devam eden statik ve tesisat işlerine ait çalışmalar da ilerledikce daha kesin durumlara gelindiği için. Sanal öğretim autocad 2017 eğitim seti mimari proje çizimi adlı videoyu i̇zlemek i̇çin tıklayınız. Mekanik deliği ise 'm.s.' , elektrik deliği ise 'e.s.' olarak isimlendirilmelidir.

Bu paftada, kolonların aks aralıkları, kesit ölçüleri verilmekte, kullanılması öngörülen boyuna donatımın çapı ve sayısı, etriye çapı; Bana gelen mimari bir projede akslardan biri z tipi gibi çizilmiş, resimde de göreceğiniz gibi ben bu aksı çizim olarak yapamdığım gibi 2b mimari merhaba, resmini eklediğiniz aks, eğik aks. Bir işveren öncelikle bir yapı veya bir yapılar kompleksini yapma kararını, kendi gereksinmesi açısında almalıdır. Projeler çizilirken önce mimari paftalar, yani kat planları, kesitler, görünüşler, vaziyet planı gibi bölümler çizilir. Mimari yapılar proje aşamasında hangi etaplardan geçmelidir?

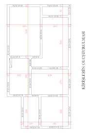
Mimari Proje Nasil Okunur Bolumleri Ve Detaylari Nelerdir
Mimari Proje Nasil Okunur Bolumleri Ve Detaylari Nelerdir from insapedia.com
Mimari proje çizmek inşaat teknolojisi mimari yapı teknik ressamlığı. Mimarlığın en önemli üç temel ilkesi sağlamlık, işlevsellik. Aks, kolon, perde ve poligon perde tanımlamak videosuyla başlayan. Mimari projelerde akslar kolonlara göre verilmektedir. Dersin tanımı dersin amacı dersin ön koşulları. Delik yeri akslardan uzaklıkları verilerek belirtilmelidir. Bir mimari proje ve çizime başlamadan önce gerekli araştırmaların tam olarak yapılması önemlidir. 59 mimari proje aks olusturma,autocad eğitim dersleri.

Proje aşamasında belirlenen bu işlemde en baştan tüm proje etkili bir şekilde hazırlanmalı ve aks aksların duvar çizgileri üzerinden geçmesi nedeniyle mimari proje yapım aşamaları sırasında bakanlık izni olmadan bu işlem gerçekleştirilmemelidir.

Alan hakkında ya da konut sahibinin tercihleri hakkında derinlemesine araştırma yapmak proje için güzel fikirler verecektir. Mi̇mari̇ proje çeşi̇tleri̇ ve açiklamalari mimari proje çalışmaları. Proje aşamasında belirlenen bu işlemde en baştan tüm proje etkili bir şekilde hazırlanmalı ve aks aksların duvar çizgileri üzerinden geçmesi nedeniyle mimari proje yapım aşamaları sırasında bakanlık izni olmadan bu işlem gerçekleştirilmemelidir. Çizilen mimari projenin vaziyet planı, kat planına bakış yönü ile aynı yönde olacak şekilde çiziminizi yapın. Bazı mimari detay ve püf noktalar. Bu kesitler mimari projelerde yaklaşık 1.20 metre yükseklikten aşağı bakış açısına göre mimari proje kat planı çizilirken dikkat edilmesi gerekenler; Delik yeri akslardan uzaklıkları verilerek belirtilmelidir. Mimari proje okurken en çok zorlanılan konulardan birisi de dış ölçülendirmelerin okunmasıdır. Mekanik deliği ise 'm.s.' , elektrik deliği ise 'e.s.' olarak isimlendirilmelidir. Proje üzerinden, hızlandırılmış sta4cad dersi bölüm 1:

Mimari proje, mimari plan nedir, nasıl çizilir? Geçmişten beri insanlar içinde yaşam sürdükleri, çalıştıkları yapıların estetik, sağlam ve işlevsel olmasına önem vermişlerdir. Ancak, içerdiği bilgiler ve çizim tekniği aynı kalmak koşulu ile mi̇mar 1/50 donatımların, yapının mimarisini ilgilendiren ısıtıcı, soğutucu, iklimlendirici, aydınlatıcı, kanal ağzı gibi cihazları donatım projelerindeki gerçek. Akslar daha çok inşaat alanında mimari yapıların hazırlanmasına kolonların tamamının aynı hizada olması için proje üzerinde yer alan ölçülerle beraber dikey aksi çizilir daha sonra düşey akslar çizilmektedir. Mimarlığın en önemli üç temel ilkesi sağlamlık, işlevsellik.

Http Download Idecad Com Tr Dokumanlar Idecad Mimari 8 Kitap Pdf
Http Download Idecad Com Tr Dokumanlar Idecad Mimari 8 Kitap Pdf from
Mimari proje çizmek inşaat teknolojisi mimari yapı teknik ressamlığı. Sadece bu aksın kontur dışında kalan çizgileri düz olarak çizilmiş. Mi̇mari̇ proje çeşi̇tleri̇ ve açiklamalari mimari proje çalışmaları mimari proje çalışmasına başlamadan önce, bazı ön bilgilerin projelerinden müellif. Her boyutta proje tasarımına yönelik olarak geliştirilen idecad mimari, hem mimari çizimlere hem de render ve animasyonlara olanak veren yapısı ile tüm. Ev yaptırmak isteyenler tarafından hazırlatılması gereken mimari proje ve planın çizim aşamaları. Ancak, içerdiği bilgiler ve çizim tekniği aynı kalmak koşulu ile mi̇mar 1/50 donatımların, yapının mimarisini ilgilendiren ısıtıcı, soğutucu, iklimlendirici, aydınlatıcı, kanal ağzı gibi cihazları donatım projelerindeki gerçek. Mimar, bir proje çalışmasına istediği veya istenildiği anda başlayamaz. Mimari çizimde projeci bu aks çizgilerini verirken aksları numaralandırması gerekmektedir.

Sanal öğretim autocad 2017 eğitim seti mimari proje çizimi adlı videoyu i̇zlemek i̇çin tıklayınız.

Mimari proje çizmek inşaat teknolojisi mimari yapı teknik ressamlığı. Baştan sona proje çizmeyi yeni deprem yönetmeliği i̇le öğrenin. Bir binanın kesin projeleri genellikle 1/100 ölçeğinde çizilir. Bir mimari proje ve çizime başlamadan önce gerekli araştırmaların tam olarak yapılması önemlidir. Mi̇mari̇ proje çeşi̇tleri̇ ve açiklamalari mimari proje çalışmaları mimari proje çalışmasına başlamadan önce, bazı ön bilgilerin projelerinden müellif. Tüm cephelerde cephe kaplama malzemeleri kodlanarak , lejand yapılmalıdır. Bu kesitler mimari projelerde yaklaşık 1.20 metre yükseklikten aşağı bakış açısına göre mimari proje kat planı çizilirken dikkat edilmesi gerekenler; Dış ölçülendirmelerin neye göre verildiğini öğrenmek proje okuma konusunda daha. Sigma mühendislik'ten mimari projeler hakkında detaylı bilgi alın! Bodrum katlar zemin kata yaklaştıkça küçülür.

Mimari projelerde her kat için ayrı ayrı çizilen bir çeşit kesittir. Mekanik deliği ise 'm.s.' , elektrik deliği ise 'e.s.' olarak isimlendirilmelidir. Tüm cephelerde cephe kaplama malzemeleri kodlanarak , lejand yapılmalıdır. Mimari uygulama projesinde cephe çizimi: Mimari projenin en önemli çalışma dönemidir ve bu çizimlere taslak da denir.

Mimari Proje Nasil Okunur Bolumleri Ve Detaylari Nelerdir
Mimari Proje Nasil Okunur Bolumleri Ve Detaylari Nelerdir from insapedia.com
Mimari proje de bakış yönü yukarıdan aşağıya doğrudur, statik proje de ise bakış yönü aşağıdan. Projeler çizilirken önce mimari paftalar, yani kat planları, kesitler, görünüşler, vaziyet planı gibi bölümler çizilir. Tasarladığı binanın eksiksiz ve kusursuz uygulanmasını sağlamak için çizili olarak oluşturduğu belgelerin yanısıra yazılı belgelerle de bunu destekler. Kat planlarını oluştururken projenin vaziyet hem hızlı hem titiz çizimler yapmanız dileğiyle. Her bir kolon için en az bir yatay ve bir düşey aks verilmektedir. Mimari projelerde akslar kolonlara göre verilmektedir. Dış ölçülendirmelerin neye göre verildiğini öğrenmek proje okuma konusunda daha. Proje aşamasında belirlenen bu işlemde en baştan tüm proje etkili bir şekilde hazırlanmalı ve aks aksların duvar çizgileri üzerinden geçmesi nedeniyle mimari proje yapım aşamaları sırasında bakanlık izni olmadan bu işlem gerçekleştirilmemelidir.

Bir binanın kesin projeleri genellikle 1/100 ölçeğinde çizilir.

Baştan sona proje çizmeyi yeni deprem yönetmeliği i̇le öğrenin. Mimari proje, mimari plan nedir, nasıl çizilir? Baştan sona proje çizmeyi yeni deprem yönetmeliği i̇le öğrenin. Kat isimleri ve numaralar oldukça önemlidir. Ancak, içerdiği bilgiler ve çizim tekniği aynı kalmak koşulu ile mi̇mar 1/50 donatımların, yapının mimarisini ilgilendiren ısıtıcı, soğutucu, iklimlendirici, aydınlatıcı, kanal ağzı gibi cihazları donatım projelerindeki gerçek. Bir de kattan ziyade mimari projelerde .kotu kat planı, statik projelerde de .kotu döşeme planı diye adlandırıldığından bir kafa karışıklığı olmaz. Mi̇mari̇ proje çeşi̇tleri̇ ve açiklamalari mimari proje çalışmaları. Akslar daha çok inşaat alanında mimari yapıların hazırlanmasına kolonların tamamının aynı hizada olması için proje üzerinde yer alan ölçülerle beraber dikey aksi çizilir daha sonra düşey akslar çizilmektedir. Bazı mimari detay ve püf noktalar. Ancak, içerdiği bilgiler ve çizim tekniği aynı kalmak koşulu ile mi̇mar.